Wo Handwerk auf Panorama trifft. In Mölln, mit direktem Blick ins Grüne und auf den See, durften wir für Mika ein ganzheitliches Raumkonzept umsetzen. Ziel war es, die Ruhe der Umgebung in den Innenraum zu holen. Entstanden ist eine Kombination aus einer modernen Holzküche und einem massiven Esstisch, die durch Materialität und Formgebung eine Brücke zur Natur schlagen, ohne den Raum zu dominieren.

Planung & Idee: In einer Ferienwohnung mit solch einer Aussicht muss sich das Interieur dem Blick unterordnen und ihn gleichzeitig unterstreichen. Wir haben uns bewusst für ein Konzept der „Natur-Zitate“ entschieden. Der Baumstumpf-Tisch steht im Zentrum des Raumes und korrespondiert direkt mit den Bäumen vor dem Fenster, während die Küche durch ihre klare Linienführung die nötige Ruhe in den offenen Wohnbereich bringt.
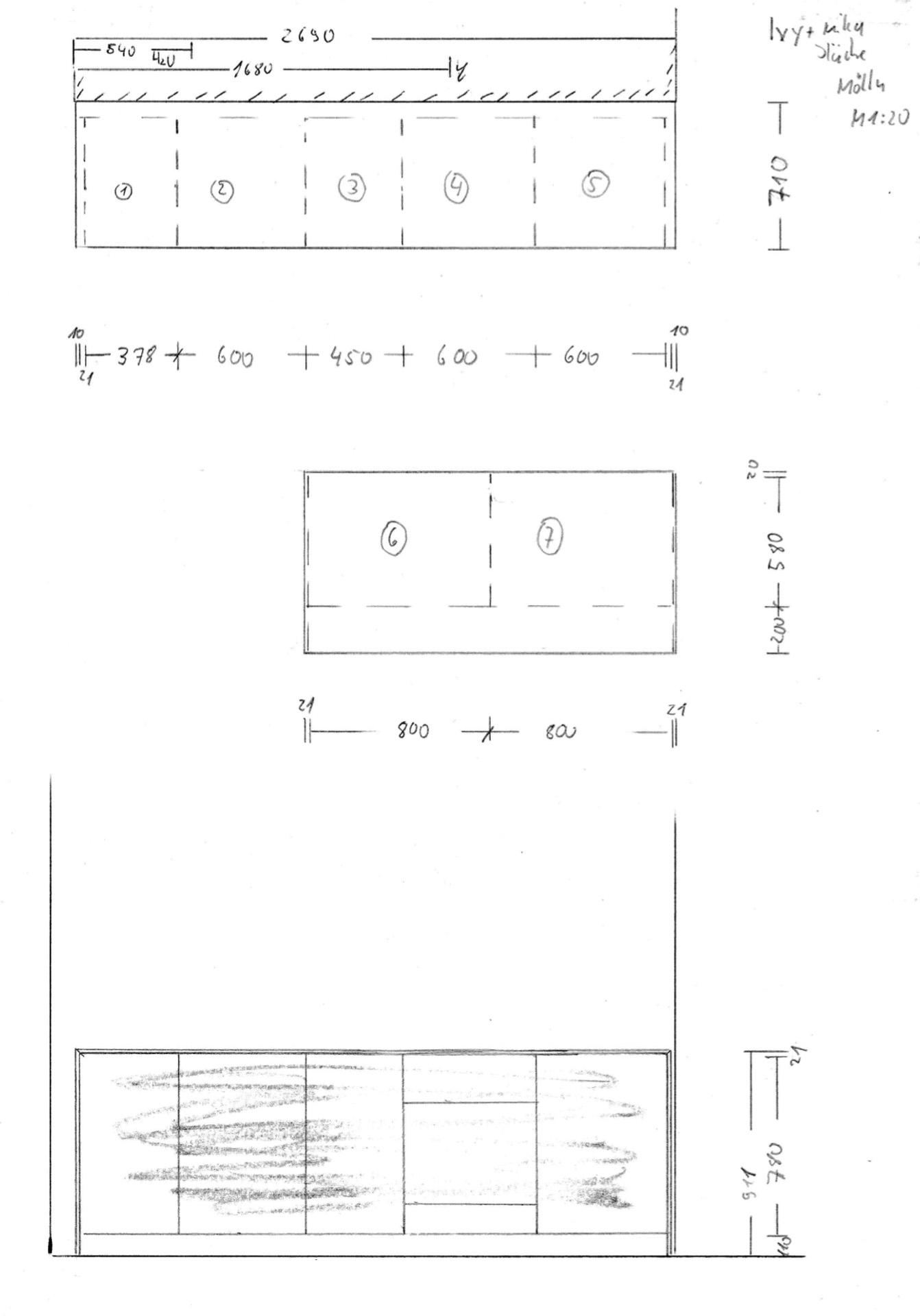
Ein Wohnkonzept mit Seele und Charakter. Die maßgefertigte Holzküche bietet höchste Funktionalität auf kompaktem Raum, während der Esstisch als Herzstück zum Verweilen einlädt. Durch die sorgsame Auswahl von Holz, Stein und den grauen Akzenten ist ein Ort entstanden, der Wärme ausstrahlt und modernes Design mit rustikaler Natürlichkeit perfekt vereint.
Vor unserem Einbau war die Wohnung ein kahler, leerer Neubau – nackte Wände und ein unbespielter Grundriss. Es fehlte an Struktur und Behaglichkeit. Unsere Aufgabe war es, aus diesem funktionalen „Nichts“ einen Ort mit echtem Wohlfühlfaktor zu erschaffen, der den spektakulären Blick auf den See würdigt.


Die Küche besticht durch warme Holzfronten, die von einer eleganten grauen „Klammer“ eingefasst werden – ein gestalterischer Kniff, der für eine moderne Struktur sorgt und verhindert, dass das dunklere Holz den Raum optisch einengt. Das absolute Highlight ist jedoch der Esstisch: Die Tischplatte aus demselben Holz ruht auf einem massiven, naturbelassenen Baumstumpf als Sockel. Dieses handwerkliche Statement-Piece verleiht dem Essbereich einen fast schon künstlerischen Galerie-Charakter.
Jedes Projekt beginnt mit einem Gespräch – und mit einem Bleistift in Andrés Hand. Als Gründer und kreativer Kopf von Möbel Objekte Hamburg verbindet er handwerkliche Präzision mit außergewöhnlichen Ideen.
Ob Sie schon eine konkrete Vorstellung haben oder noch nach Inspiration suchen: Gemeinsam entwickelt André mit Ihnen ein Möbelstück oder Raumkonzept, das wirklich zu Ihnen passt.


Wir arbeiten als eingespieltes Team, das seit vielen Jahren Möbel und Raumkonzepte auf höchstem Niveau realisiert. Durch unsere Erfahrung haben wir ein starkes Netzwerk aus Partnern aufgebaut – von Tischlern über Designer bis hin zu spezialisierten Handwerkern. So bündeln wir Fachwissen aus allen Bereichen und können nahezu jeden Wunsch umsetzen.
Sie möchten wissen, ob Ihre Idee Wirklichkeit werden kann? Schildern Sie uns kurz Ihr Projekt, und wir melden uns schnellstmöglich persönlich bei Ihnen zurück.
Jetzt KontaktierenAm Anfang steht ein persönliches Gespräch, in dem wir alle Wünsche und Ideen sammeln. André erstellt anschließend erste Skizzen per Hand, entwickelt daraus einen Entwurf und stimmt Material und Design mit Ihnen ab. Sobald alles feststeht, beginnt die Fertigung in unserer Werkstatt oder bei langjährigen Partnern – bis Ihr Möbelstück bei Ihnen zu Hause passgenau eingebaut wird.
Wir fertigen individuell nach Kundenwunsch: Kleiderschränke, Sideboards, Tische, Küchenmöbel und vieles mehr. Auch Spezialanfertigungen und Upcycling-Projekte realisieren wir gern.
Ja, bei uns erhalten Sie Komplettlösungen für einzelne Räume oder gesamte Wohnungen – alles aus einer Hand und professionell koordiniert.
Da jedes Möbelstück individuell geplant und gefertigt wird, hängen die Kosten stark von Größe, Material und Aufwand ab. Nach dem ersten Gespräch erhalten Sie ein transparentes Angebot. Unser Anspruch: faire Preise für handgefertigte Qualität, die viele Jahre Freude bereitet.